La mejor calidad, la mejor atención y toda la confianza que puedes encontrar en casas prefabricadas de Chile.
Conversemos
Te ayudamos en todo el proceso de compra para tu nueva casa prefabricada
Leer más
Conoce nuestras promociones en todas nuestras casas prefabricadas y adicionales
Leer más
|

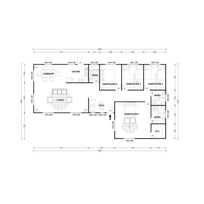
Casa Yelcho 144 M²

Descripción

4 dormitorios · 3 baños
Modelo referencial - CASA PREFABRICADA

Precio $8.490.000

Pensada para familias que buscan amplitud y durabilidad. La Casa Yelcho combina estructura de pino de primera selección con una cubierta resistente a la corrosión y un interior listo para avanzar en terminaciones.

¿Qué incluye el kit inicial?

  • Estructura: Paneles de pino 2x3" (interiores y exteriores) con pie derecho cada 60 cm.
    Altura de muros: 2,40 m + 1,0 m de frontón.
  • Madera: Casa completa en madera de primera selección.
  • Muros exteriores: Revestimiento en tinglado o media luna + barrera de vapor (fieltro asfáltico) para proteger de la humedad.
  • Tabiques interiores: Entregados al desnudo, con kit de planchas de yeso-cartón de 10 mm para revestir por una cara.
  • Frontones: Revestimiento de cierre de cerchas, instalado in situ.
  • Cerchas: Simples, en pino 1"x4", altura aprox. 0,8 m.
  • Cubierta:
    • Barrera de vapor (fieltro asfáltico) bajo la techumbre.
    • Costaneras en pino 1"x4".
    • Planchas acanaladas de 0,35 mm con protección anticorrosiva AZM 150.
    • Caballete de zinc en la cumbrera.
  • Espacio social: Viga a la vista de refuerzo en living–comedor.
¿Preguntas? Háblanos por WhatsApp