La mejor calidad, la mejor atención y toda la confianza que puedes encontrar en casas prefabricadas de Chile.
Conversemos
Te ayudamos en todo el proceso de compra para tu nueva casa prefabricada
Leer más
Conoce nuestras promociones en todas nuestras casas prefabricadas y adicionales
Leer más
|

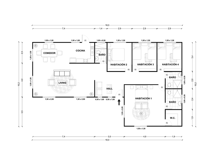
Casa Toltén 141 m²

Descripción

4 Habitaciones — 3 Baños

Modelo referencial

¿Qué incluye el kit inicial?

  • Estructura de pino 2x3" en paneles interiores y exteriores; pie derecho a 60 cm. Altura total de paneles 2,40 m.
  • Casa completa en madera de primera selección.
  • Paneles perimetrales revestidos con tinglado o media luna; incluye barrera de vapor fieltro asfáltico.
  • Tabiques interiores al desnudo en madera de primera, dimensionada verde. Incluye kit de planchas de yeso cartón de 10 mm estándar para revestir por una cara.
  • Revestimiento para cierre de cerchas de frontón, in situ.
  • Cerchas simples en madera de primera dimensionada verde de 1"x4"; altura 1,0 m.
  • Incluye barrera de vapor para cubierta fieltro asfáltico.
  • Costaneras de madera de primera, pino dimensionado verde de 1"x4".
  • Planchas de cubierta acanaladas espesor 0,35 mm. Protección a la corrosión calidad AZM 150.
  • Caballete de zinc para cumbrera y limahoya.
  • Incluye viga de refuerzo para zona living–comedor.

También podría interesarte uno de estos

¿Preguntas? Háblanos por WhatsApp