La mejor calidad, la mejor atención y toda la confianza que puedes encontrar en casas prefabricadas de Chile.
Conversemos
Te ayudamos en todo el proceso de compra para tu nueva casa prefabricada
Leer más
Conoce nuestras promociones en todas nuestras casas prefabricadas y adicionales
Leer más
|

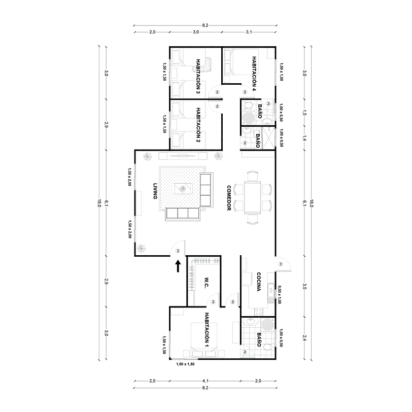
Casa Maullín 120 m²

Descripción

4 dormitorios · 3 baños

Precio $7.490.000

Modelo referencial

¿Qué incluye el kit inicial?

  • Estructura: Paneles de pino 2x3" (interiores y exteriores) con pie derecho cada 60 cm. Altura de paneles 2,40 m.
  • Madera: Casa completa en madera de primera selección.
  • Muros exteriores: Revestimiento en tinglado o media luna con barrera de vapor (fieltro asfáltico).
  • Tabiques interiores: Al desnudo en madera de primera (dimensionada verde). Incluye kit de planchas de yeso-cartón 10 mm para revestir por una cara.
  • Frontones: Revestimiento in situ para cierre de cerchas de frontón.
  • Cerchas: Simples en pino 1"x4", altura aprox. 1,0 m.
  • Cubierta: Incluye barrera de vapor (fieltro asfáltico).
  • Costaneras: Pino 1"x4".
  • Planchas de cubierta: Acanaladas 0,35 mm con protección anticorrosiva AZM 150.
  • Terminaciones: Caballete de zinc para cumbrera y limahoya.

También podría interesarte uno de estos

¿Preguntas? Háblanos por WhatsApp