Casas del Maipo
Visita nuestro Showroom en Caletera ruta 5 sur 1288, Buin
|

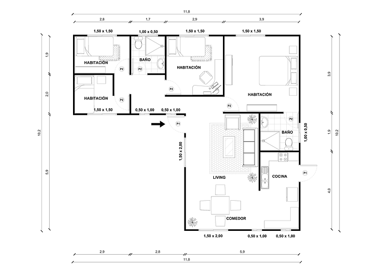
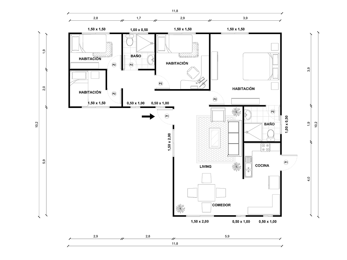
Casa Toltén 83 m²

Descripción

Casa Toltén 83 m² Precio $ 7.490.000

4 Habitaciones 2 Baño

KIT INICIAL

Estructura en perfiles de acero galvanizado de 60mm.
Perfiles de 60 mm, en paneles interiores y exteriores, sus montantes a cada 40 cm. Altura total de paneles 2.4m.
Paneles perimetrales revestidos con OSB.
Tabiques interiores en base a perfiles estructurales 60mm (tabique se entrega desarmado, se envían las piezas
dimensionadas para ensamblar de forma rápida y fácil en terreno). Yeso cartón de 10mm para forrar una cara de los paneles interiores.
Revestimiento para cierre de cerchas de frontón, in situ.
Cerchas en base a perfiles de 60mm (cordón sup. e inf.), perfiles de 60mm para diagonales. Altura 1,5m.
Incluye barrera de vapor para cubierta fieltro asfáltico.
Costaneras en base a omega normal de 38mm. X 35mm.
Planchas de cubierta acanaladas espesor 0,35mm. Protección a la corrosión calidad AZM 150.
Caballete de Zinc para cumbrera.
Coronación de paneles perimetrales de base a perfil C + U.
OSB para techumbre

Envíanos un mensaje de WhatsApp